Коптильно-варочная камера КТД-150 ЕXPERT Premium
350000 ₴
КТД-150 EXPERT Premium — высококачественная универсальная промышленная автоматизированная коптильно-варочная камера, предназначена для натурального копчения и варки мясных изделий, рыбы, сыров. Загрузка до 170 кг. Универсальная — выполняет все необходимые режимы приготовления мясной и рыбной продукции: вяление, сушка, варка, обжаривание, копчение. Высокий уровень автоматизации позволяет снизить до минимума участие человека в работе термокамеры, а значит получать стабильное качество продукции.Подойдёт как для профессионалов, так и начинающих !
Если у вас:
— разнообразная продукция;
— большие объёмы производства;
— нет квалифицированных коптильщиков;
— недостаточно свободного времени для работы с примитивными коптильнями;
— ну или вы просто хотите пить кофе и наблюдать как коптильная камера самостоятельно всё делает; То это оборудование вам поможет!
Основные преимущества коптильной камеры EXPERT КТД-150 Premium:
- Полная автоматизация процесса. Минимальное участие оператора в работе камеры.
- Высокое качество! Изготовлена полностью из качественной нержавеющей стали. Применяются качественные промышленные комплектующие.
- Компактность.
- Мощная конвекция обеспечивает равномерность обработки продукта при полной загрузке.
- Верхнее расположение нагревателей исключает попадание на них капель жира и образование неприятного запаха.
- Мощный конвекционный вентилятор, большая мощность нагревателей и качественная теплоизоляция позволяют полностью загружать коптильную камеру и сократить время копчения по сравнению с коптильнями, в конструкции которых не предусмотрены или установлены малопроизводительные вентиляторы с нагревателями недостаточной мощности.
- Продукт можно располагать как на решетках, так и подвешивать!
- Датчики температуры позволяют контролировать и автоматически поддерживать в заданных пределах температуру воздуха внутри камеры, температуру внутри продукта, влажность ,температуру дыма.
Предназначена для натурального копчения и варки мясных изделий, рыбы, сыров. Загрузка до 170 кг, в зависимости от вида продукции.
Выполняет режимы: вяление, сушка, варка, обжарка, копчение.
Оборудована:
- промышленным контроллером с пошаговым программированием;
- частотным регулятором оборотов конвекционного вентилятора;
- тремя управляемыми заслонками с сервоприводами;
- автоматическим дымогенератором с автоматическим поджигом щепы и автоматическим управлением плотностью дыма;
- автоматическим парогенератором с автоматическим наполнением водой.
Контроллер позволяет автоматизировать весь процесс приготовления продукции и минимизирует участие оператора в работе камеры.
Режимы работы задаются и выводятся на цветном графическом экране сенсорной панели с диагональю 16 см.

Оператор выбирает из списка сохраненных программ необходимую последовательность процессов с необходимыми параметрами, например: сушка — обжарка — копчение — варка — продувка. Нажимает СТАРТ и коптильная камера автоматически, последовательно, выполняет все процессы без необходимости участия оператора, в том числе и автоматический поджиг щепы в дымогенераторе!
В память контроллера можно записать 9 программ. В программу можно записать до шести шагов. В каждом шаге задается температура в камере и продукте, скорость вращения вентилятора, угол открытия заслонок, продолжительность процесса.

Контроллер в автоматическом режиме поддерживает заданную температуру в камере, продукте и влажность в течение необходимого времени в соответствии с заданной программой. Управляет сервоприводами заслонок вентиляции, открывает и закрывает заслонки в соответствии с заданной программой. В режиме копчения осуществляет автоматический поджиг щепы и управляет интенсивностью тления по температуре дыма. В зависимости от режима управляет скоростью вращения вентилятора. К контроллеру подключено 5 датчиков температуры, которые измеряют: температуру в камере, температуру внутри продукта (датчик-игла), влажность в камере (психрометр), температуру дыма для управления подачей воздуха в «дымогенератор и температуру пара в парогенераторе.
Контроллер также осуществляет контроль работы основных исполнительных механизмов и отклонения от заданных значений. В случае отказа или некорректной работы, при отклонении заданных параметров включается светозвуковая сигнализация.
Корпус камеры изготовлен полностью из долговечного и безопасного для здоровья материала — нержавеющей стали. Внутренняя часть камеры изготавливается из нержавеющей стали AISI304 толщиной 1.2 мм, внешняя AISI430/201. Качественная теплоизоляция — фольгированная базальтовая вата толщиной 50 мм, обеспечивает минимальные потери тепла и уменьшает расход электроэнергии. На дверях установлен качественный силиконовый термостойкий уплотнитель, который обеспечивает герметичность камеры. В дверях установлен двойной стеклопакет, в камере предусмотрено освещение.
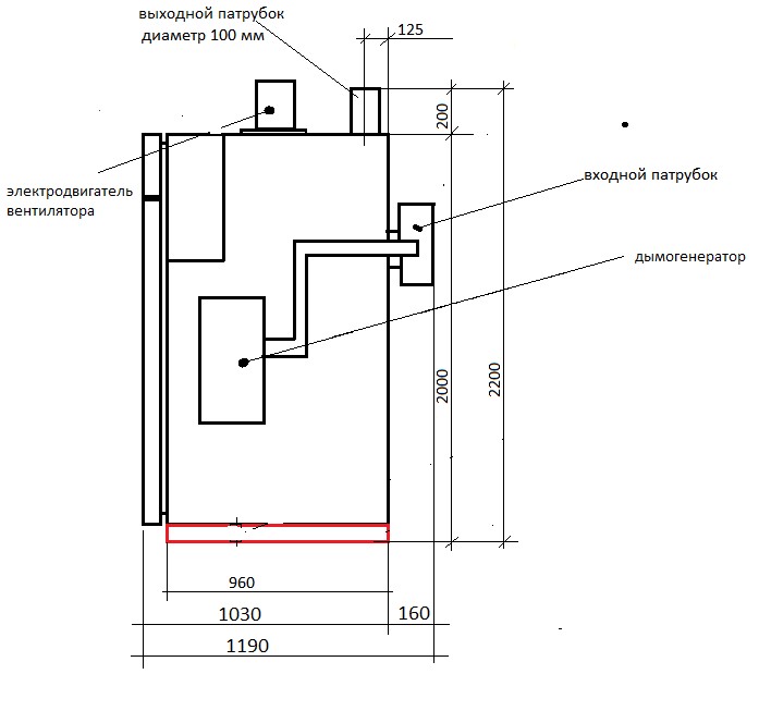
Внутри камеры в верхней части расположен циркуляционный вентилятор и нагреватели (ТЭН). Вентилятор позволяет подсушивать продукт перед копчением и обеспечивает равномерность обработки продукта. По бокам расположены сопла, через которые вентилятор нагнетает нагретую дымовоздушную смесь в зону продукта.Поток дымовоздушной смеси направляется сверху вниз, проходит через продукцию и поднимается вверх. Между вентилятором и продукцией располагается специальная перегородка, которая обеспечивает равномерное распределение воздушных потоков и защищает продукцию от капель смолы.Привод вентилятора — мощный промышленный электродвигатель. Скорость вращения вентилятора регулируется частотным преобразователем в диапазоне 1000 — 2600 об/мин.

Дым для копчения образуется благодаря тлению щепы специальных пород дерева в автоматическом дымогенераторе, расположенном снаружи коптильной камеры. Изготавливается из нержавеющей стали. Максимальный объём загрузки 10 литров. Дымогенератор оборудован автоматическим электроподжигом щепы. Одной загрузки щепы хватает до 2-5 часов работы в зависимости от заданных параметров. Воздух в зону тления щепы подается через электроклапан, который управляется контроллером. Температура дыма контролируется датчиком.

Коптильная камера оборудуется парогенератором бойлерного типа. Пар получается благодаря нагреванию воды ТЭНами, что позволяет получить насыщенный пар и уменьшить общее время приготовления продукта. В специальной герметичной емкости вода нагревается ТЭНами, что приводит к испарению воды и образованию пара. Парогенератор изготавливается из нержавеющей стали AISI304 толщиной 1.5 мм, утепляется. Для контроля уровня воды установлен датчик уровня. Наполнение парогенератора водой автоматическое, из водопровода.

Технические характеристики:
- Работает от 3 фазной сети 380 вольт, 50 Гц.
- Полная электрическая мощность — 15 кВт.
- Размеры 1200×1400×2250 мм.
- Вес 450 кг.


Дополнительная комплектация под заказ:
- решетки в комплектацию не входят. Стандартные решетки имеют прутки диаметром 3 мм, расстояния между ними 30 мм, стоимость комплекта решеток 8 шт. — 12000 грн. Решетки из нержавеющей сетки с ячейкой 8×8 мм — 22800 грн. Размер решеток — 850×790 мм.
- система охлаждения воздуха в камере для возможности осуществления холодного копчения в случае повышенной наружной температуры. Стоимость 60000 грн. Позволяет поддерживать в камере стабильную температуру 18 — 22 град. при холодном копчении независимо от внешней температуры. Для этого устанавливается компрессорно-конденсаторный агрегат на базе герметичного компрессора и конденсатора от ведущего европейского производителя.











